Living area
About 125 m²
Plot area
About 150 m²
Year built
Built in 1973
Number of rooms
5 rooms (4 bedrooms)

Isabelladonk 22

4707 VR, Roosendaal (Noord-Brabant)

A spacious living room with garden view, four bedrooms, a stylish bathroom and a sunny garden - this home at 22 isabelladonk has it all. thanks to the semi-open kitchen, practical layout and 10 solar panels, you live here comfortably and energy efficiently. a lovely home with plenty of opportunities to decorate to your own taste! will you come and take a look soon?

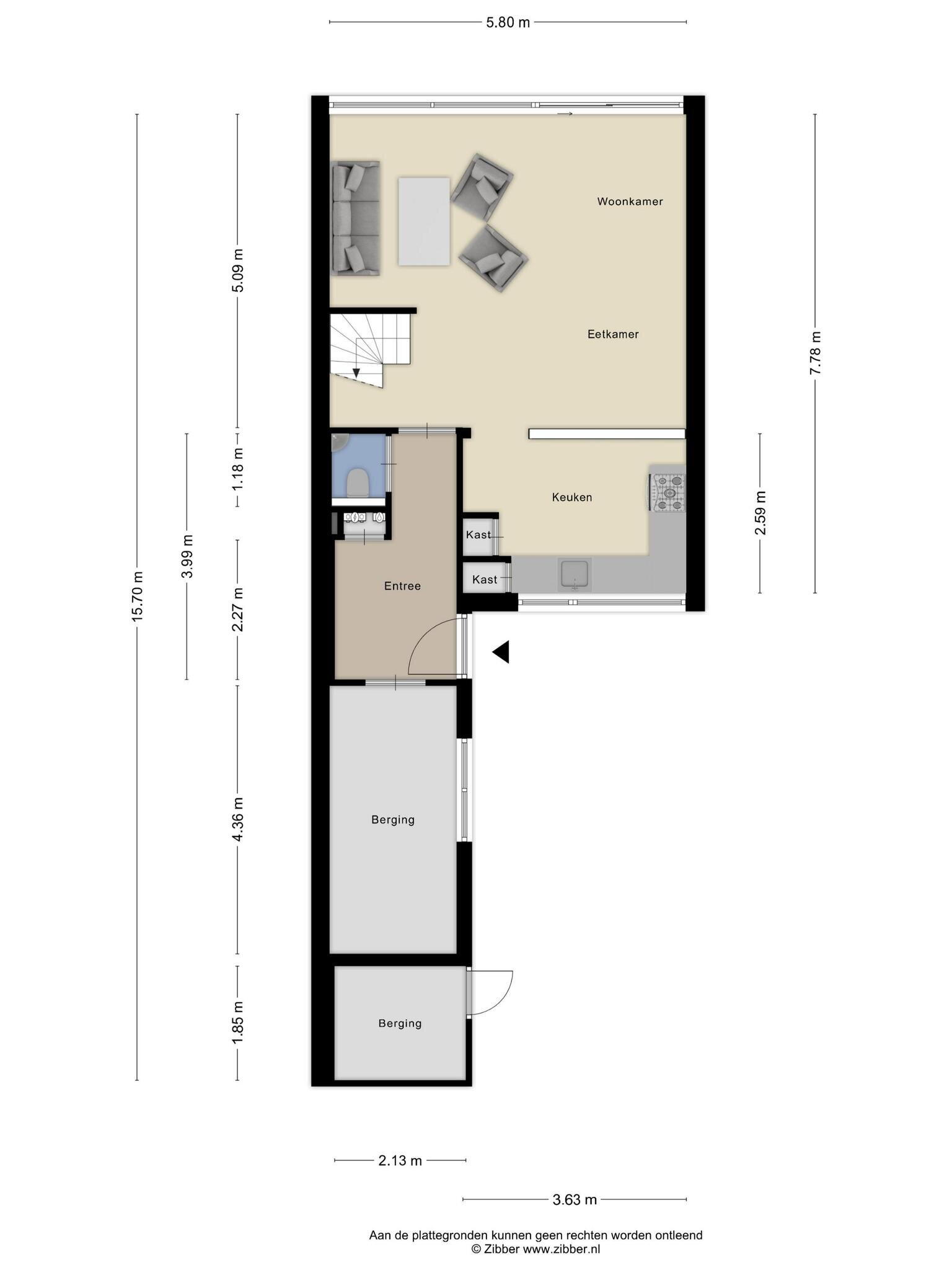
entrance
parking is easy in the street, and through the low maintenance front garden you reach the front door. here you also have access to one of the two storage rooms, ideal for extra storage or a bike shed. entering the hall you will find the meter cupboard, the toilet and access to the living room.

living & cooking
the bright living room is located at the rear of the house and offers a nice view of the garden. there is enough space for a comfortable seating area and a cozy dining area. the staircase upstairs is located in the living room, which makes for a playful layout. the semi-open kitchen at the front of the house has a rustic, white look and is equipped with all conveniences: a stove, hood, microwave, oven, fridge-freezer, dishwasher and a close-in boiler. thanks to the low dividing wall with the living room, the kitchen remains connected to the rest of the living space. extra storage space? the front storage room offers room for an extra refrigerator or pantry cabinets.

sleeping & dreaming
on the second floor, you'll find three spacious bedrooms. all three are large enough for a double bed and can be decorated to your own taste! the bathroom is modern and stylish, with a double sink with cabinet, a toilet and a spacious walk-in shower. the white wall tiles give a fresh look, while the rust-colored tiles in the shower add a unique and cool detail. on the second floor, a fixed staircase leads to the landing with two handy storage spaces. here is also the fourth bedroom, a nice, bright space with a skylight.

outdoor living
the backyard is accessible from the living room and is maintenance-friendly landscaped with plant borders, artificial grass and a wooden shed. thanks to the blinds, you can enjoy sunny days with just that little extra comfort.

sustainable & complete
with 10 solar panels, this house is not only spacious and attractive, but also future-proof and energy-efficient!

can you see yourself living here already? contact us soon and plan a viewing!

explanation clause nen2580:
the measuring instruction is based on the nen2580. the measuring instruction is intended to apply a more uniform way of measuring to give an indication of the usable area. the measuring instruction does not completely rule out differences in measurement results, for example due to differences in interpretation, rounding off or limitations in carrying out the measurement.

Floor plans

Transfer

Asking price
€ 299,000 k.k.
Status
Sold
Acceptance
By arrangement

Construction

Object type
Single-family house, terraced house
Type of construction
Existing construction
Year built
1973
Type of roof
Saddle roof

Area and content

Living area
125 m²
Plot area
150 m²
Content
457 m³
Other indoor space
4 m²
External storage space
7 m²

Classification

Number of rooms
5 rooms (4 bedrooms)
Number of bathrooms
1 bathroom
Bathroom facilities
Toilet, shower, sink, washbasin
Number of residential floors
3 floors
Facilities
Roller shutters, solar panels

Energy

Energy label
A
Energy label registration
06-01-2025
Isolatie
Wall insulation, double glazing, hr glass
Heating
Boiler
Hot water
Boiler
Cv kettle
Intergas combi boiler gas fired from 2018 (owned)

Outdoor space

Location
In residential area
Garden
Backyard, front yard

Storage

Barn / storage room
Attached stone

Garage

Type of garage
No garage

Parking

Type of parking facility
Public parking

Energy consumption in Roosendaal

Energy label this property

Energielabel A

Publishing energy label: 06-01-2025

Power consumption per year

2790 kWh

(Average terraced house in Roosendaal)

Gas consumption per year

1080 m³

(Average terraced house in Roosendaal)

* Figures are from CBS and are intended as an indication and may vary for this property

Indication of mortgage costs

Own deposit:
Savings / surplus value

Interest:
Lowest 10-year interest rate

Lowest 10-year interest rate

2,74% - Centraal Beheer Groen... - NHG


3,05% - Centraal Beheer Groen... - 80%

Lowest 20-year interest rate

3,19% - Centraal Beheer Groen... - NHG


3,31% - Centraal Beheer Groen... - 80%

Lowest 30-year interest rate

3,34% - Centraal Beheer Groen... - NHG


3,47% - Centraal Beheer Groen... - 80%


Mortgage:

Gross monthly expenses: € 0 p/m

Net monthly expenses: € 0 p/m

How do we calculate this?

The interest rate is based on the lowest 10-annual fixed rate for one mortgage part. The interest rate listed (2.74% met NHG) was checked on 22-04-2025. This calculation is based on an annuity mortgage that is fully repaid, with monthly payments remaining the same throughout the term. Actual interest and net monthly payments may vary depending on your personal situation and the mortgage lender. Please consult a financial advisor for an accurate calculation and advice. No rights can be derived from this calculation; it serves only as an indication.

Documentation

Viewing solar borders

On the map

Residents in Roosendaal

Cijfers voor postcodegebied 4707

Total population
16200 inhabitants
Men
49%
Women
51%

Residents in Roosendaal

Cijfers voor postcodegebied 4707

up to 15 years
15%
15 to 25 years
11%
25 to 35 years
21%
45 to 65 years
26%
65 and older
26%

Households in Roosendaal

Cijfers voor postcodegebied 4707

Single without children
35%
Multi-person without children
31%
Households without children
66%

Households in Roosendaal

Cijfers voor postcodegebied 4707

Households with one child
9%
Households with multiple children
24%
Households with children
33%

Homes in Roosendaal

Cijfers voor postcodegebied 4707

Houses before 1945
1%
Houses between 1945 and 1965
1%
Houses between 1965 and 1975
53%
Houses between 1975 and 1985
19%
Houses between 1985 and 1995
13%

Homes in Roosendaal

Cijfers voor postcodegebied 4707

Homes between 1995 and 2005
4%
Homes between 2005 and 2015
9%
Homes after 2015
1%
Rental properties
50%
Homes for sale
50%

Other in Roosendaal

Cijfers voor postcodegebied 4707

Average WOZ value
€ 201.000,-
Persons under 65 with benefits
9%

Other in Roosendaal

Cijfers voor postcodegebied 4707

Addresses per km²
2025
Urbanity (scale of 1 to 5)
80%
Postcode kaart 4707 Gemeente kaart roosendaal

If you have any questions or would like to schedule a viewing, please use the form to the right. You will be contacted shortly thereafter.

Vakidioten met een passie voor vastgoed

Bij C&R Makelaars draait alles om jou en je woning. Wij zijn een frisse, energieke generatie makelaars met een passie voor mensen en de woningmarkt.

We geloven in een persoonlijke aanpak zonder poespas: eerlijk, transparant en altijd met een flinke dosis enthousiasme. Het verkopen van je huis is een belangrijke stap, en daarom begeleiden we je op een manier die bij jou past, van begin tot eind.

Met onze diepgaande kennis van de lokale markt geven we je waardevol advies dat perfect aansluit bij jouw situatie én dat van potentiële kopers.

Daarnaast staat ons creatieve team van vastgoedmarketeers klaar om jouw woning in de schijnwerpers te zetten. Met slimme en doordachte strategieën zorgen we ervoor dat je huis opvalt en het maximale resultaat behaalt.

Jouw tevredenheid is ons einddoel. We zetten alles op alles om je verwachtingen te overtreffen. Nieuwsgierig naar ons team? Klik op de button hieronder en maak kennis met ons!

Vakidioten met een passie voor vastgoed
Reviews C&R Makelaars

Isabelladonk 22, Roosendaal

€ 299,000 k.k. - Sold

Helaas, deze woning is verkocht!

Net te laat, deze woning is al verkocht. Laat een zoekopdracht bij ons achter zodat wij u direct kunnen helpen wanneer er nieuw aanbod beschikbaar komt.